Михнево
Домодедово мкр.Западный ул.Лунная, д.5, офис 8
пн-пт 9:00 - 18:00, выходной: сб. вс.

Проектирование

Заключительной стадией работ перед сдачей инженерных систем является их пуско-наладка, которая производится после окончания монтажа всего оборудования. Цель пуско-наладочных работ – регулировка систем, проверка соответствия оборудования и параметров их работы проектным показателям, выявление и устранение неисправностей. В...
Разработка технических решение и проектной документации предваряет любые работы по строительству объектов недвижимости и монтажу инженерных систем. На основе исходных данных, полученных в результате анализа исследуемого объекта, составляется техническое задание для проектирования инженерных систем, после чего выполняются проект...
В наши дни автоматизация зданий позволяет организовать эффективное и продуктивное управление его системами. Сложные системы жизнеобеспечения, объединенные в одну управляемую базу, стали неотъемлемой частью современного здания. Среди преимуществ автоматизации зданий можно выделить: Автоматическое управление проложенными инжен...
К слаботочным системам относятся телевидение, телефон, интернет, системы видеонаблюдения, сигнализации, радио, системы оповещения, кабельные, локальные сети, автоматизация - то есть, комплекс неотъемлемой инфраструктуры для современного здания. Название "слаботочные" означает, что по проводам/кабелям проходит ток с напряжением м...
Канализация - составная часть системы водоснабжения и водоотведения, предназначенная для удаления продуктов жизнедеятельности, хозяйственно-бытовых и дождевых сточных вод. Система канализации обязательна для любого строения, будь то жилой дом или промышленный объект. Нестабильная работа канализации приводит к засорам и наруше...
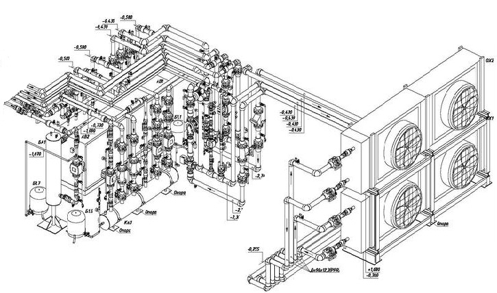
Кондиционирование воздуха - искусственное поддержание в закрытых помещениях температуры, влажности, чистоты, скорости движения воздуха. Кондиционирование способствует созданию оптимальных климатических условий для находящихся в помещениях людей, имущества и для технологического процесса. При проектировании систем кондиционирова...
При пожарах, помимо прямого огня, большую опасность представляет дым. Чтобы свести к минимуму эту опасность, в зданиях устанавливаются системы дымоудаления. Они позволяют обеспечить безопасную эвакуацию людей во время пожара, особенно на его начальном этапе. К задачам таких систем относятся предотвращение распространения дыма о...
Системы отопления незаменимы и в жилых домах, и в промышленных зданиях и помещениях, особенно в условиях сурового российского климата. Отопление должно работать бесперебойно и поддерживать заданный температурный уровень, соответствующий тепловому комфорту и требованиям технологического процесса (Федеральный закон №190-ФЗ "О теп...
Системы электроснабжения - совокупность систем передачи, преобразования, распределения электрической энергии от источников к потребителям, а также систем управления процессами электроснабжения. Первый вопрос, который необходимо решить перед проектированием систем электроснабжения - оценить необходимую потребляемую электрическу...
Система пожаротушения - комплекс средств своевременного обнаружения и оперативной ликвидации возгорания. Данные системы обеспечивают локализацию либо полную ликвидацию пожара на объекте. В России пожарная безопасность регламентируется Федеральным законом № 69-ФЗ "О пожарной безопасности", Правилами пожарной безопасности ППБ 01...
Вентиляция - важнейшая система жизнеобеспечения. Системы вентиляции должны обеспечивать постоянный приток свежего воздуха в помещение, удаление вредных газов и избытков тепла. Разумеется, при этом важно соблюдать санитарно-гигиенические нормы и противопожарные меры, а также следить, чтобы потоки воздуха не приводили к сквознякам...
Системы водоснабжения - комплекс инженерных сооружений и сетей, используемых для обеспечения потребителей водой в требуемых объемах и необходимого качества. Системы устанавливаются таким образом, чтобы обеспечить подачу холодной и горячей воды из наружных сетей на объект. Источником могут выступать как обычные водоемы, так и по...
Строительство любых инженерных сетей начинается с важнейшего этапа - проектирования. На этом этапе закладываются основы всего технического процесса. На проектировании зданий и инженерных систем (отопление, вентиляция, кондиционирование, электрика, автоматика) специализируется проектный отдел группы компаний "Теплохолод". Прое...

ООО “ТеплоХолод” - системы вентиляции и кондиционирования
г. Домодедово, ул. Лунная, д. 5, +7(496) 795-55-49 +7(964) 788-68-78

Осуществляя любые действия на сайте Вы соглашаетесь с политикой обработки персональных данных

Обращаем ваше внимание на то, что данный интернет-сайт (teploholod.su) носит исключительно информационный характер и ни при каких условиях не является публичной офертой, определяемой положениями Статьи 437 п.2 Гражданского кодекса Российской Федерации.

Заказ в 1 клик